Sale e spazi del museo

Le sale e gli spazi del Museo

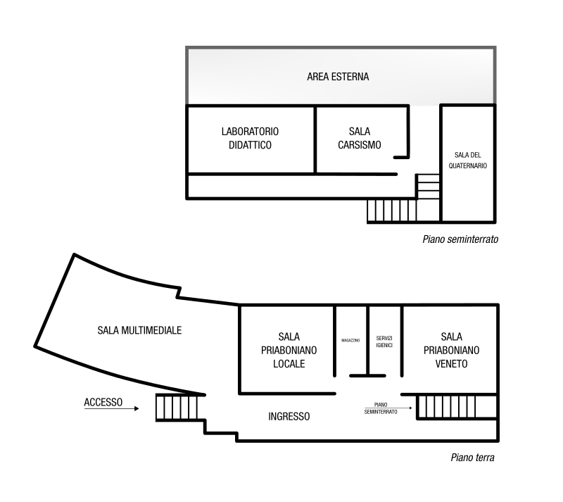
Il nuovo museo del Priaboniano è ospitato negli ampi spazi delle ex-scuole elementari di Priabona, in una struttura completamente dedicata, con servizi, spazi all’aperto, sale didattiche e sale polifunzionali.

Lo spazio espositivo è strutturato in quattro sale espositive. A queste vanno aggiunti gli spazi esterni al museo, utilizzabili per attività all’aperto, gli itinerari del territorio, gli spazi del Buso della Rana con sala, ampio parcho verde, servizi, parcheggio anche per autobus).

Torna in alto